КК 108
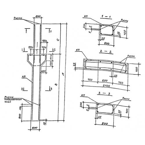
Характеристики изделия:
| Параметр | Значение |
|---|---|
| длина | 11850 мм |
| ширина | 400 мм |
| высота | 2100 мм |
| вес | 9900 кг |
| Шифр | 2021-164.1 |
Цена:
Рассчитать стоимостьКК 108 Колонны по Шифру 2021-164.1.
| Параметр | Значение |
|---|---|
| длина | 11850 мм |
| ширина | 400 мм |
| высота | 2100 мм |
| вес | 9900 кг |
| Шифр | 2021-164.1 |
КК 108 Колонны по Шифру 2021-164.1.
