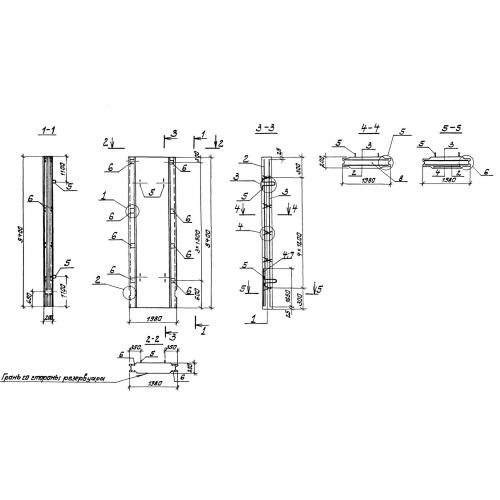
ПГ 54
Характеристики изделия:
| Параметр | Значение |
|---|---|
| длина | 1980 мм |
| ширина | 200 мм |
| высота | 5400 мм |
| вес | 5000 кг |
| серия | 3.902.1-12 |
Цена:
Рассчитать стоимостьПГ 54 Панели перегородочные по серии 3.902.1-12.
| Параметр | Значение |
|---|---|
| длина | 1980 мм |
| ширина | 200 мм |
| высота | 5400 мм |
| вес | 5000 кг |
| серия | 3.902.1-12 |
ПГ 54 Панели перегородочные по серии 3.902.1-12.
