ЛК 73.70.75
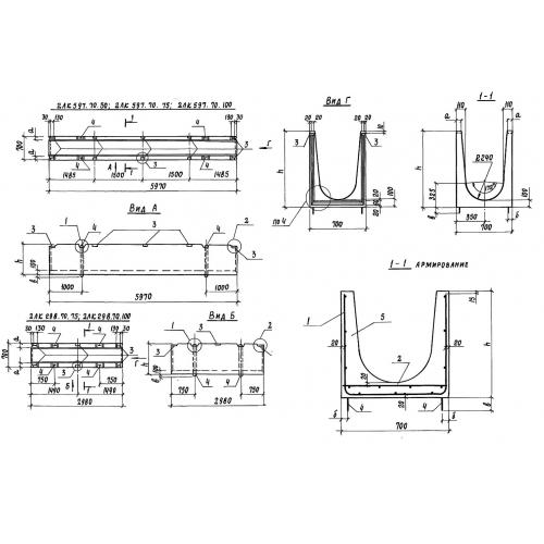
Характеристики изделия:
| Параметр | Значение |
|---|---|
| длина | 730 мм |
| ширина | 700 мм |
| высота | 750 мм |
| вес | 425 кг |
| серия | 3.818.9-2 |
Цена:
Рассчитать стоимостьЛК 73.70.75 Лотки для каналов навозоудаления по серии 3.818.9-2.
| Параметр | Значение |
|---|---|
| длина | 730 мм |
| ширина | 700 мм |
| высота | 750 мм |
| вес | 425 кг |
| серия | 3.818.9-2 |
ЛК 73.70.75 Лотки для каналов навозоудаления по серии 3.818.9-2.
