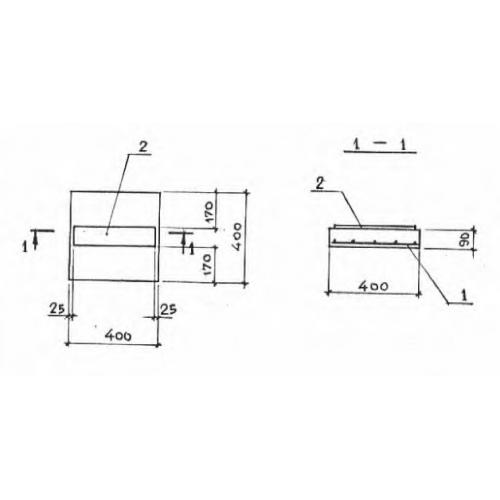
ОП 3 опорные подушки

Чертеж изделия:
Характеристики изделия:
ПараметрЗначение
длина400 мм
ширина400 мм
высота90 мм
масса40 кг
нормативный документСерия 3.006.1-2/87

ОП 3  Опорные подушки Серия 3.006.1-2/87.