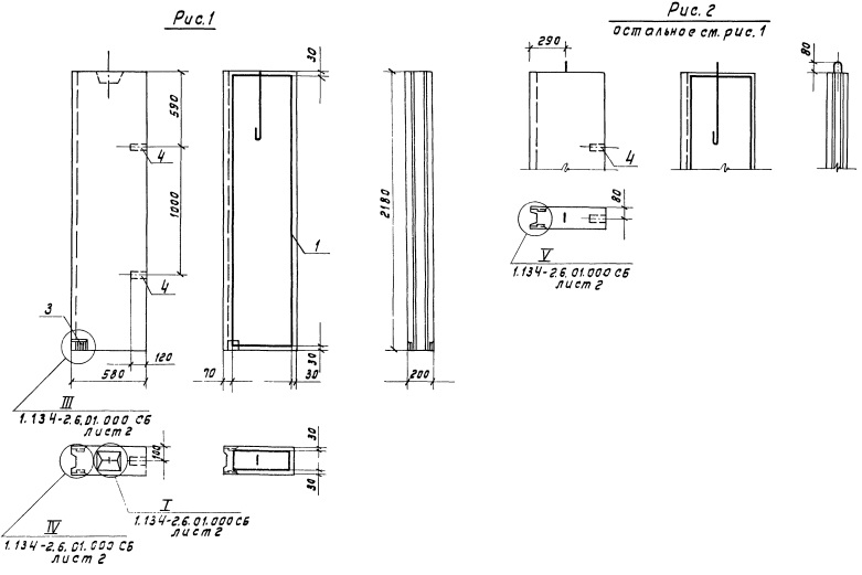
СБ 6.22.1-п

Чертеж изделия:
Характеристики изделия:
ПараметрЗначение
Длина580 мм
Ширина160 мм
Высота2180 мм
Масса320 кг
Нормативный документСерия 1.134-2

Блоки внутренних стен из легких бетонов толщиной 16 и 20 см  для жилых зданий высотой 1-4 этажа и общественных зданий высотой 1-3 этажа по Серии 1.134-2.

СБ 6.22.1-п  Стеновой блок.