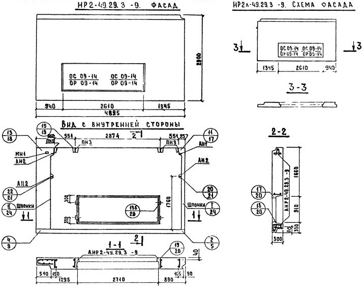
НР2-49.29.3-9

Чертеж изделия:
Характеристики изделия:
ПараметрЗначение
Длина4895 мм
Ширина300 мм
Высота2900 мм
Масса4950 кг
Нормативный документСерия 1.132-2

НР2-49.29.3-9    Наружная стеновая панель рядовая по Серии 1.132-2.