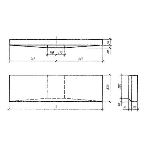
ЛСС 24

Чертеж изделия:
Характеристики изделия:
ПараметрЗначение
длина2380 мм
ширина330 мм
высота100 мм
вес185 кг
серия1.055.1-1

ЛСС 24 Ступени плоские для сквозных лестничных маршей по серии 1.055.1-1.