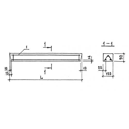
8ПБ 10 перемычки брусковые

Чертеж изделия:
Характеристики изделия:
ПараметрЗначение
длина1030 мм
ширина120 мм
высота90 мм
масса28 кг
нормативный документСерия 1.038.1-1

8ПБ 10  Перемычки брусковые Серия 1.038.1-1.