МП 2

Чертеж изделия:
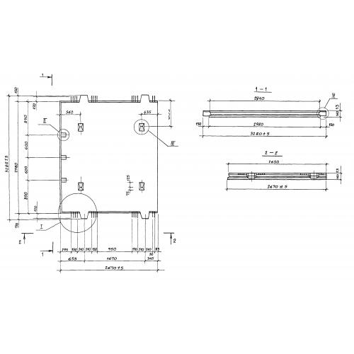
Характеристики изделия:
ПараметрЗначение
длина3280 мм
ширина2670 мм
высота160 мм
масса3250 кг
нормативный документГОСТ 27108-86

МП 2  Межколонные плиты ГОСТ 27108-86.